
この物件のURL
https://www.kimutaku.co.jp/rent/living/apartment/post-613.php
QRコードを読み込んでスマートフォンに送ることもできます。
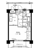
ユーミー南延岡 (延岡市 伊達町)<1K>202号室【アパート】
【住所】延岡市伊達町
【最寄り駅】JR日豊本線 南延岡駅 /バス停「伊達町2丁目」
| 間取り | 築年月 | 構造 | 駐車場 | 学校区 | |
|---|---|---|---|---|---|
| 1K | 2008年9月 | RC | 有 | 恒富小学校 南中学校 | |
| 家賃 | 管理費 | 敷金/礼金 | 保証金/敷引 | 住宅保険等 | 区費 |
| 42,000円 | - | 1.5ヶ月/- | -/- | 18,000円 / 2年更新 | - |
| 権利金 | 保証料 | ||||
| - | 契約時:月額総賃料×80%、毎月保証料300円 | ||||
| その他費用 | |||||
| 仲介手数料:賃料+駐車場料(税別)、月々保証料:800円 | |||||
| 設備・条件 | |||||
| 電気、水道、公共下水、都市ガス、モニター付きインターフォン、BS、CATV、インターネット使用料無料、バルコニー、駐輪場、 室内洗濯機置場、フローリング、クローゼット、エアコン、シューズボックス、 バス・トイレ別、シャワー、風呂、給湯、追焚機能、湯張り機能、水洗トイレ、洋式トイレ、洗浄便座、暖房便座、シャンプードレッサー、 日当り良好、 ユーミーマンション、シングル向け、学生おすすめ、礼金無し | |||||
| 備考 | |||||
| ※間取りは現況を優先します。室内写真は別部屋画像です。 | |||||
〒882-0856 宮崎県延岡市出北4丁目3196番地1 TEL 0982-26-1924 / FAX 0982-26-1996 営業時間/平日8:30~18:00 土日祝8:30~17:00(不定休)
宅建免許番号 宮崎県知事(6)第4168号