掲載件数賃貸520件、売買35

木村宅地建物株式会社

延岡市、日向市、門川町の賃貸アパート、マンション、一戸建、賃貸・売買不動産情報

物件詳細

MS大貫(延岡市大貫町)<1LDK>102号室

【延岡市 マンション】築浅物件!インターネット無料!単身者の方オススメ!!周辺には、スーパー・コンビニ等があり買い物に便利でバス停近くです。

最寄駅 JR日豊本線 延岡駅
住所 延岡市大貫町

家賃 50,000円
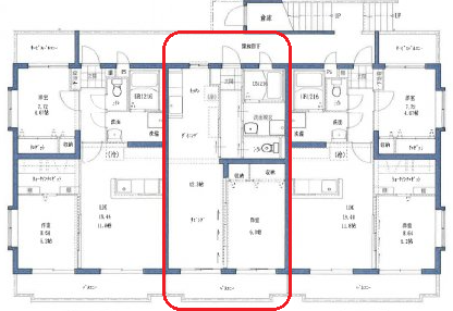
間取 1LDK (43.86m2)
駐車場

物件の詳細情報

物件名 MS大貫(延岡市大貫町)<1LDK>102号室 種別 マンション
住所 宮崎県延岡市大貫町 学校区
交通 JR日豊本線 延岡駅 方角 -
間取 1LDK 間取詳細 洋6 LDK11.8
家賃 50,000円 築年月 2018年3月
管理費 - 敷金 -
礼金 2ヶ月 保証金 -

さらに詳細を表示する

敷引 - 住宅保険等 18,000円 / 2年更新
区費 - 保証料 賃料総額80%~
権利金 - その他費用 仲介手数料(賃料1ヶ月分)
専有面積 43.86m2(13.26坪) 構造 RC
階建 地上3階 / 地上3階建 総戸数 -
駐車場 有(賃料に1台込み円/月) 2台目駐車場 有(別途3,000円/月)
現況 - 引渡時期 -
契約区分 普通賃貸借 取引態様 -
設備・条件 電気、水道、公共下水、都市ガス、モニター付きインターフォン、CATV、インターネット、インターネット使用料無料、バルコニー、駐輪場、2台駐車可、 室内洗濯機置場、フローリング、クローゼット、収納、エアコン、シューズボックス、 バス・トイレ別、シャワー、風呂、給湯、水洗トイレ、洋式トイレ、洗浄便座、暖房便座、洗面化粧台、 日当り良好、 シングル向け
備考

この物件のアクセスマップ

物件のお問い合わせ先

電話をかけて問い合わせる

木村宅地建物株式会社

0982-26-1924

FAX 0982-26-1996

〒882-0856 宮崎県延岡市出北4丁目3196番地1

営業時間/平日 8:30~18:30 土日祝 8:30~17:00
定休日/不定休
宅建免許番号 宮崎県知事(6)第4168号

※「ホームページを見た」とお伝え頂くと、お問合せがスムーズです。
※各種状況と現況に差異がある場合は、現況優先となります。