掲載件数賃貸603件、売買31

木村宅地建物株式会社

延岡市、日向市、門川町の賃貸アパート、マンション、一戸建、賃貸・売買不動産情報

物件詳細

ユーミー南延岡 (延岡市 伊達町)<1K>202号室

【延岡市 マンション】南延岡駅近く!!スーパー、コンビニ等が近くに有り買い物に便利です。エアコン・ウォシュレット設備!!湯張り機能・追い炊き機能付き!!単身者の方オススメ!!
※駐車場は、空きスペース(要確認)空きスペースが無い場合は近隣別借りになります。

最寄駅 JR日豊本線 南延岡駅 徒歩3分 / 宮崎交通バス 伊達町2丁目 下車 徒歩1分
住所 延岡市伊達町

家賃 42,000円
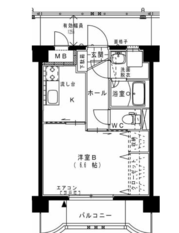
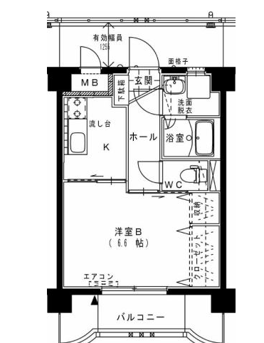
間取 1K (27.6m2)
駐車場

物件の詳細情報

物件名 ユーミー南延岡 (延岡市 伊達町)<1K>202号室 種別 アパート
住所 宮崎県延岡市伊達町 学校区 恒富小学校
南中学校
交通 JR日豊本線 南延岡駅 徒歩3分 / 宮崎交通バス 伊達町2丁目 下車 徒歩1分 方角
間取 1K 間取詳細 K3 洋6.5
家賃 42,000円 築年月 2008年9月
管理費 - 敷金 1.5ヶ月
礼金 - 保証金 -

さらに詳細を表示する

敷引 - 住宅保険等 18,000円 / 2年更新
区費 - 保証料 契約時:月額総賃料×80%、毎月保証料300円
権利金 - その他費用 仲介手数料:賃料+駐車場料(税別)、月々保証料:800円
専有面積 27.6m2(8.34坪) 構造 RC
階建 地上 / 地上4階建 総戸数 10戸
駐車場 有(別途2500(要確認)円/月) 2台目駐車場
現況 居住中 引渡時期 4月中旬入居可能予定
契約区分 普通賃貸借 取引態様 仲介
設備・条件 電気、水道、公共下水、都市ガス、モニター付きインターフォン、BS、CATV、インターネット使用料無料、バルコニー、駐輪場、 室内洗濯機置場、フローリング、クローゼット、エアコン、シューズボックス、 バス・トイレ別、シャワー、風呂、給湯、追焚機能、湯張り機能、水洗トイレ、洋式トイレ、洗浄便座、暖房便座、シャンプードレッサー、 日当り良好、 ユーミーマンション、シングル向け、学生おすすめ、礼金無し
備考 ※間取りは現況を優先します。室内写真は別部屋画像です。

360°パノラマ画像 360-degree panoramic view

玄関
トイレ
洗面脱衣
浴室
キッチンスペース
洋室

この物件のアクセスマップ

物件のお問い合わせ先

電話をかけて問い合わせる

木村宅地建物株式会社

0982-26-1924

FAX 0982-26-1996

〒882-0856 宮崎県延岡市出北4丁目3196番地1

営業時間/平日 8:30~18:30 土日祝 8:30~17:00
定休日/不定休
宅建免許番号 宮崎県知事(6)第4168号

※「ホームページを見た」とお伝え頂くと、お問合せがスムーズです。
※各種状況と現況に差異がある場合は、現況優先となります。